Apartament 1 camere de vanzare in Cluj-Napoca, Manastur ID 936
Pret:
32 000 EURO negociabil
Nr. camere:
1
Etaj:
Parter
Bloc Nou:
da
Finalizat:
nu
Confort:
1
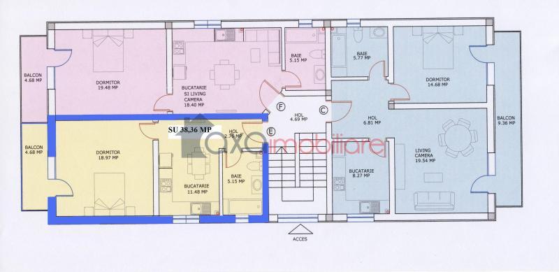
Suprafata utila:
38 m2
Balcoane:
1
Localitate:
Cluj-Napoca
Cartier:
Manastur
Zona:
Polus
Adaugat in data:
31-05-2011
Actualizat in data:
09-10-2023
Vizite oferta:
11584
Dotari imobil
Bucatarie:
1
Bai:
1
Parcare:
da
Beci:
nu
Decomandari:
Decomandat
Mobilat:
nu
Utilat:
nu
Constructie:
Caramida
Parchet
Gresie
Faianta
Geamuri termopan
Lavabil
Usa antiefractie
Usi interioare
Telefon
Cablu TV
Internet
Centrala termica
Contoare gaz
Descriere imobil
Oferim spre vanzare apartament cu 1 camera, cu suprafata utila de 38 mp, pozitionat la parter.
Imobilul este situat in Cluj-Napoca, in cartierul Manastur, in zona Polus.
Folositi formularul de mai jos pentru a ne contacta
Persoana de contact: Ciuca Aurica
Telefon: 0752/283205
Fax: + 40 264 333 147
Email: aurica@axaimobiliare.com
Adresa: Cluj-Napoca, Str. Memorandumului, nr. 19



