Apartament 2 camere de vanzare in Floresti ID 6613
Dotari imobil
Caramida
Beton
Descriere imobil
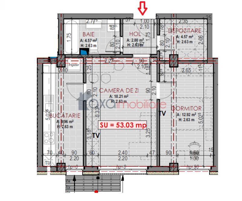
De vanzare apartament cu 2 camere, cu o suprafata utila de 53.03 mp, situat in Floresti, in zona strazii Urusagului; intr-o locatie linistita, nou-dezvoltata, cu acces usor spre punctele de interes (magazine, supermarket-uri, statie de autobuz, gradinita).
Imobilul face parte dintr-un ansamblu rezidential nou dispus pe regim de inaltime S+P+2E+ER, avand garaj subteran si locuri de parcare exterioare.
Pozitionare
Parter / S+P+2E+ER.
Orientare
Sudica.
Compartimentare
1 hol
1 spatiu pentru depozitare
1 baie
1 living
1 bucatarie
1 dormitor.
Se vinde la stadiul de semifinisat, cu utilitati trase la pozitie (apa, gaz, electricitate, canalizare).
Se vinde cu peretii gletuiti si tencuiti.
Se preda cu centrala termica, calorifere, geamuri termopan, usa antiefractie.
Posibilitate loc de parcare exterior si / sau in garajul subteran (contra cost).
Termen finalizare: Martie 2024.
Pret 49.990 Euro (la plata integrala)
Pret 51.990 Euro (la plata cu avans de 50%)
Pret 52.990 Euro (la plata cu avans de 25%)
Opinia agentului
" Apartament pozitionat la parterul unui ansamblu rezidential nou. Semifinisat, bucatarie separata, spatiu pentru depozitare, locatie aerisita si nou-dezvoltata. Orientare Sudica, acces usor. "



