Apartment 2 rooms for sell in Cluj-napoca, Borhanci ID 4522
Price:
75 500 EURO negotiable
Price / sm:
1 241 EURO/m2
No. of rooms:
2
Floor:
Ground floor/3
New building:
yes
Build year:
2017
Finalized building:
no
Finalized date:
Iunie 2018
Comfort:
Marit
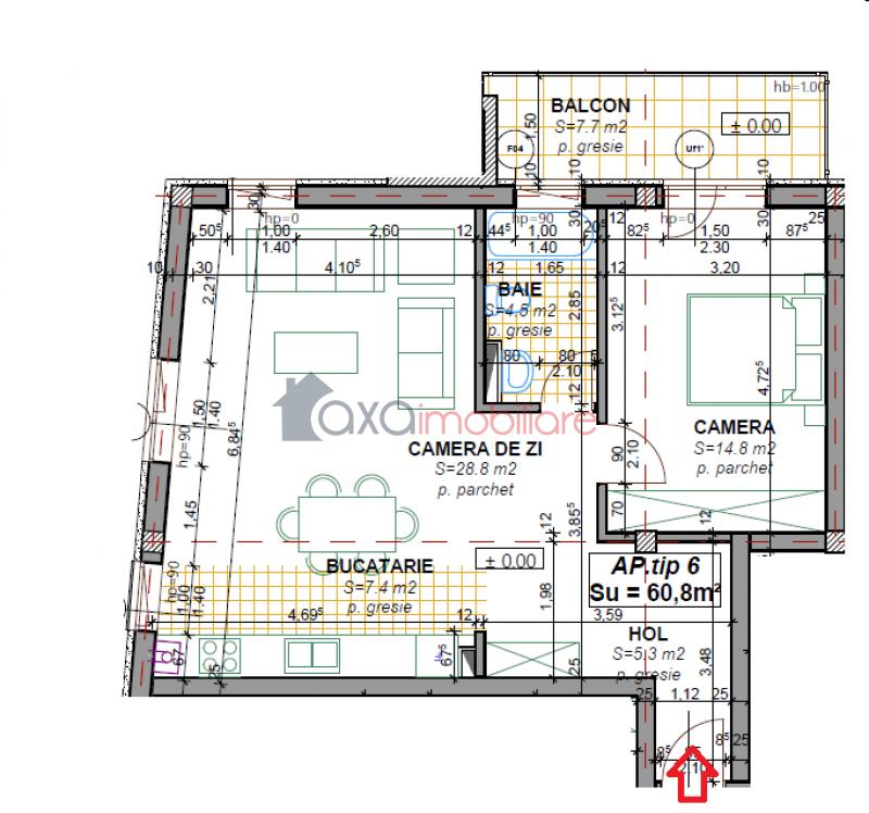
Build area:
60.8 m2
Balconies:
1 (7.7mp)
City:
Cluj-Napoca
Ward:
Borhanci
Zone:
Romul Ladea
Add date:
23-02-2018
Update date:
12-08-2025
Views number:
11871
Characteristic details
Kitchen:
1
Bathrooms:
1
Garage:
1 Contra cost
Parking:
no
Cellar:
no
Divided:
Divided
Finishing:
Semi finishing
With furniture:
no
Fit out:
no
Build:
Bricks
Concrete
Concrete
Frostedglass windows
Metal door
Heat station
Gas counter
You can conctact us using the form below.
Contact person: Ciuca Aurica
Phone: 0752/283205
Fax: + 40 264 333 147
Email: aurica@axaimobiliare.com
Address: Cluj-Napoca, Str. Memorandumului, nr. 19



