Apartment 2 rooms for sell in Cluj-napoca, Gheorgheni ID 3519
Price:
63 500 EURO negotiable
Price / sm:
1 108 EURO/m2
No. of rooms:
2
Floor:
Intermediate/3
New building:
yes
Build year:
2016
Finalized building:
no
Finalized date:
Decembrie 2016
Comfort:
Marit
Build area:
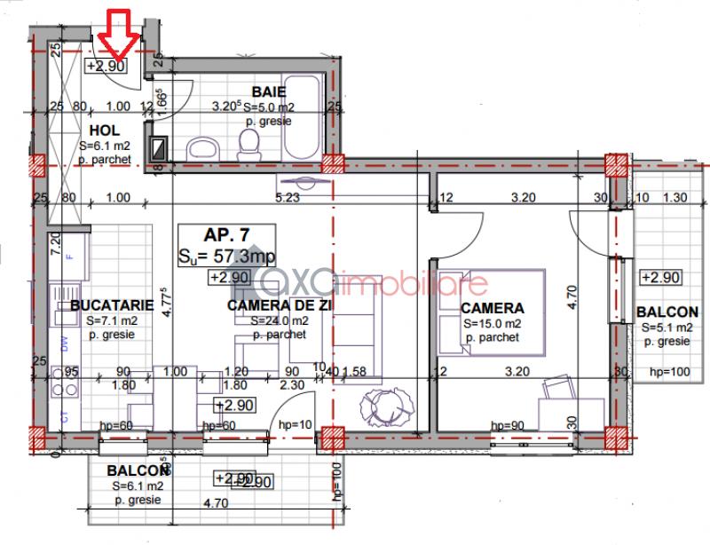
57.3 m2
Balconies:
2
City:
Cluj-Napoca
Ward:
Gheorgheni
Zone:
Brancusi
Add date:
06-05-2016
Update date:
15-10-2020
Views number:
12685
Characteristic details
Kitchen:
1
Bathrooms:
1
Garage:
1
Parking:
no
Cellar:
no
Divided:
Semi divided
Finishing:
Semi finishing
With furniture:
no
Fit out:
no
Build:
Bricks
Frostedglass windows
Metal door
Heat station
Gas counter
CF
You can conctact us using the form below.
Phone: + 40 264 333 147
+ 40 742 130 130
Fax: + 40 264 333 147
Email: office@axaimobiliare.com
Address: Cluj-Napoca, Str. Memorandumului, nr. 19



