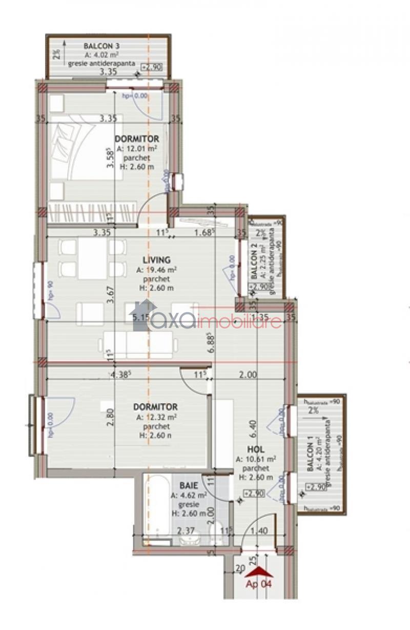
Apartment 3 rooms for sell in Cluj-napoca, Zorilor ID 4448
Price:
87 500 EURO negotiable
Price / sm:
1 458 EURO/m2
No. of rooms:
3
Floor:
1/4
New building:
yes
Finalized building:
yes
Finalized date:
Dupa 2010
Comfort:
1
Build area:
60 m2
Balconies:
3 Finisate
City:
Cluj-Napoca
Ward:
Zorilor
Zone:
Strazii Padurii
Add date:
13-12-2017
Update date:
28-09-2020
Views number:
14220
Characteristic details
Kitchen:
1
Bathrooms:
1
Parking:
yes-In curte
Cellar:
no
Divided:
Divided
Finishing:
Modern finishing
With furniture:
no
Fit out:
no
Build:
Bricks
Parquet
Sand stone
Faience
Frostedglass windows
Washable walls
Metal door
Interior doors
TV cable
Internet connection
Heat station
Gas counter
CF
You can conctact us using the form below.
Contact person: Ciuca Aurica
Phone: 0752/283205
Fax: + 40 264 333 147
Email: aurica@axaimobiliare.com
Address: Cluj-Napoca, Str. Memorandumului, nr. 19



