House 4 rooms for sell in Cluj-napoca, Bulgaria ID 5209
Price:
169 000 EURO negotiable
No. of rooms:
4
Build area:
127 m2
City:
Cluj-Napoca
Ward:
Bulgaria
Zone:
Branului
Add date:
31-05-2019
Update date:
26-01-2023
Views number:
12840
Characteristic details
Kitchen:
1
Bathrooms:
3
Terraces:
2
Garage:
no
Parking:
yes
Cellar:
no
Garden:
no
Auto access:
yes
Finishing:
Semi finishing
With furniture:
no
Fit out:
no
Build:
Bricks
Concrete
Concrete
Frostedglass windows
Heat station
CF
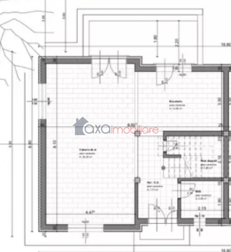
Imobil details
Duplex
Building floors:
P+E / 2 niveluri
Floors description:
PARTER / PRIMUL NIVEL: living + loc de luat masa, bucatarie, baie, debara, hol, 1 balcon.
ETAJ / AL DOILEA NIVEL: 1 dormitor matrimonial (cu baie proprie), 2 dormitoare, 1 baie, hol, 1 balcon.
ETAJ / AL DOILEA NIVEL: 1 dormitor matrimonial (cu baie proprie), 2 dormitoare, 1 baie, hol, 1 balcon.
New building:
yes
Finalized building:
yes
Finalized date:
2019
You can conctact us using the form below.
Contact person: Ciuca Aurica
Phone: 0752/283205
Fax: + 40 264 333 147
Email: aurica@axaimobiliare.com
Address: Cluj-Napoca, Str. Memorandumului, nr. 19



