House 4 rooms for sell in Cluj-napoca, Tineretului ID 5959
Price:
135 000 EURO negotiable
Price / sm:
1 350 EURO/m2
No. of rooms:
4
Build area:
100 m2
Land area:
200 m2
City:
Cluj-Napoca
Ward:
Tineretului
Zone:
Voronet
Add date:
10-12-2020
Update date:
02-08-2021
Views number:
7339
Characteristic details
Kitchen:
1
Bathrooms:
2
Terraces:
4
Garage:
no
Parking:
yes
Cellar:
no
Garden:
yes
Auto access:
yes
Finishing:
Semi finishing
With furniture:
no
Fit out:
no
Build:
Bricks
Concrete
Concrete
Frostedglass windows
Heat station
Imobil details
Duplex
Building floors:
P+E / 2 niveluri
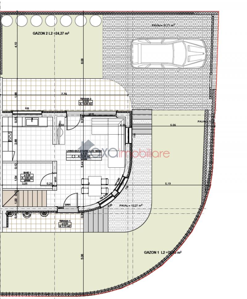
Floors description:
Parter / Primul nivel: 1 living cu loc de luat masa, 1 bucatarie, 1 baie, 1 hol, scara interioara, 2 terase.
Etaj / Al doilea nivel: 2 dormitoare, 1 birou, 1 hol, 1 baie, 2 balcoane.
Etaj / Al doilea nivel: 2 dormitoare, 1 birou, 1 hol, 1 baie, 2 balcoane.
New building:
yes
Build year:
2020
Finalized building:
no
Finalized date:
2021
You can conctact us using the form below.
Contact person: Ciuca Aurica
Phone: 0752/283205
Fax: + 40 264 333 147
Email: aurica@axaimobiliare.com
Address: Cluj-Napoca, Str. Memorandumului, nr. 19



